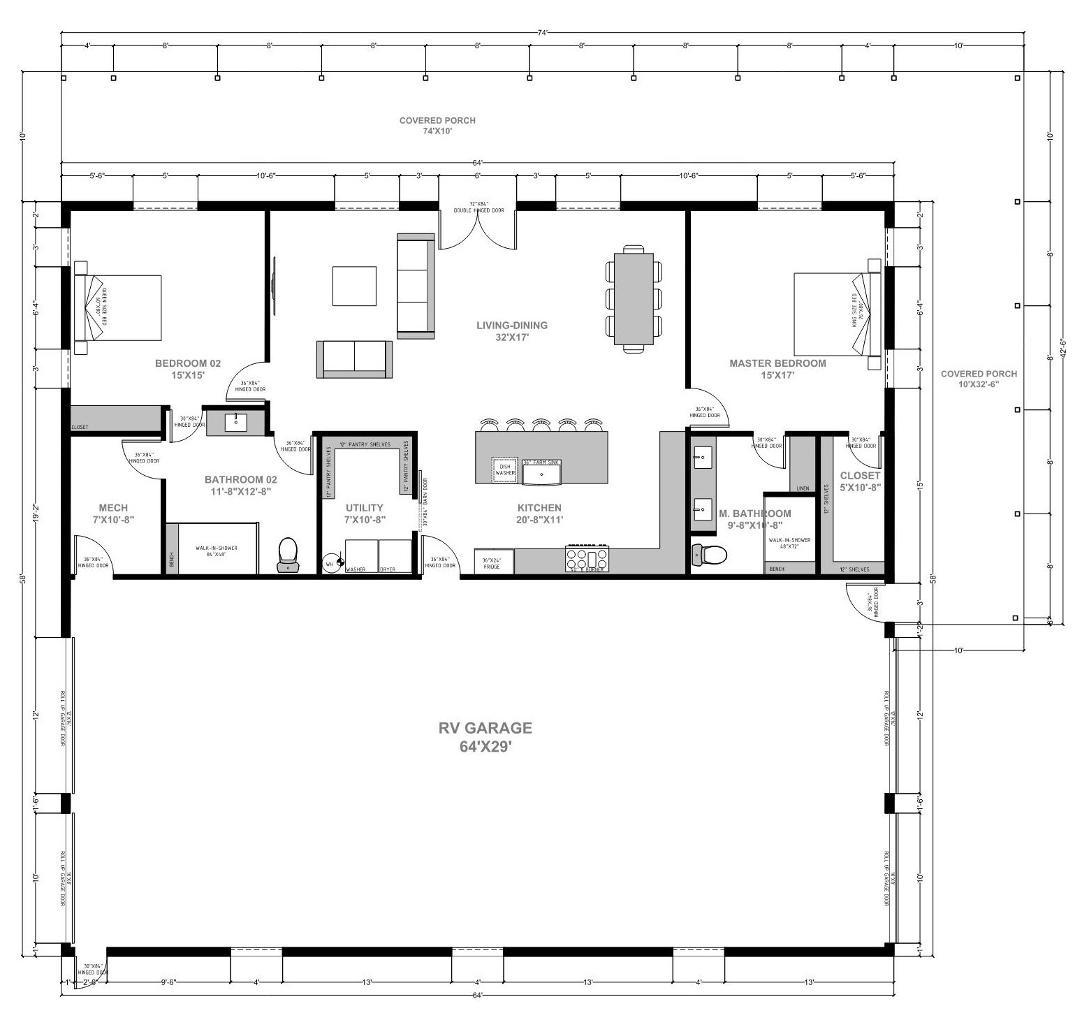
THE YELLOW ROSE
Welcome to “The Yellow Rose” barndominium, a captivating embodiment of Texas’s heritage and contemporary living. Crafted by Texas Rural Construction, this exceptional dwelling harmoniously merges traditional barn aesthetics with the comforts of a modern home. Nestled in a serene setting, “The Yellow Rose” invites you to experience the allure of rustic design, spacious interiors, and a connection to the scenic outdoors. Discover a home that stands as a tribute to Texas’s rich legacy while offering a lifestyle of convenience and style.
















1,856
SQFT
2
Bed
2
Bath




