THE RANGER
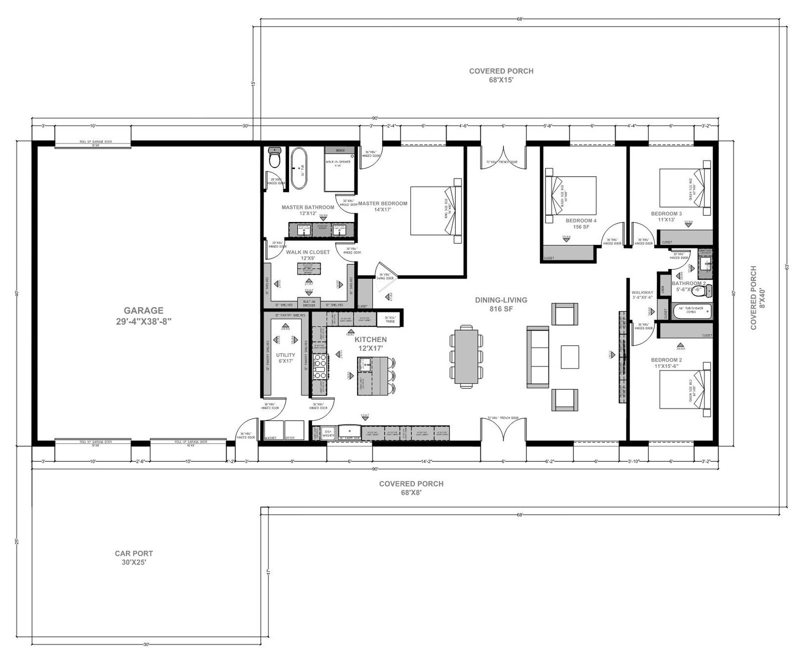
Explore the captivating allure of “The Ranger” Barndominium, a remarkable fusion of rugged elegance and contemporary living. Crafted by Texas Rural Construction, this thoughtfully designed space encapsulates the spirit of Texan living, offering a harmonious balance between functionality and style. With a spacious layout that seamlessly merges living and leisure areas, “The Ranger” beckons those who seek a distinctive and comfortable lifestyle in the heart of Texas.


















2,400
SQFT
4
Bed
2
Bath




