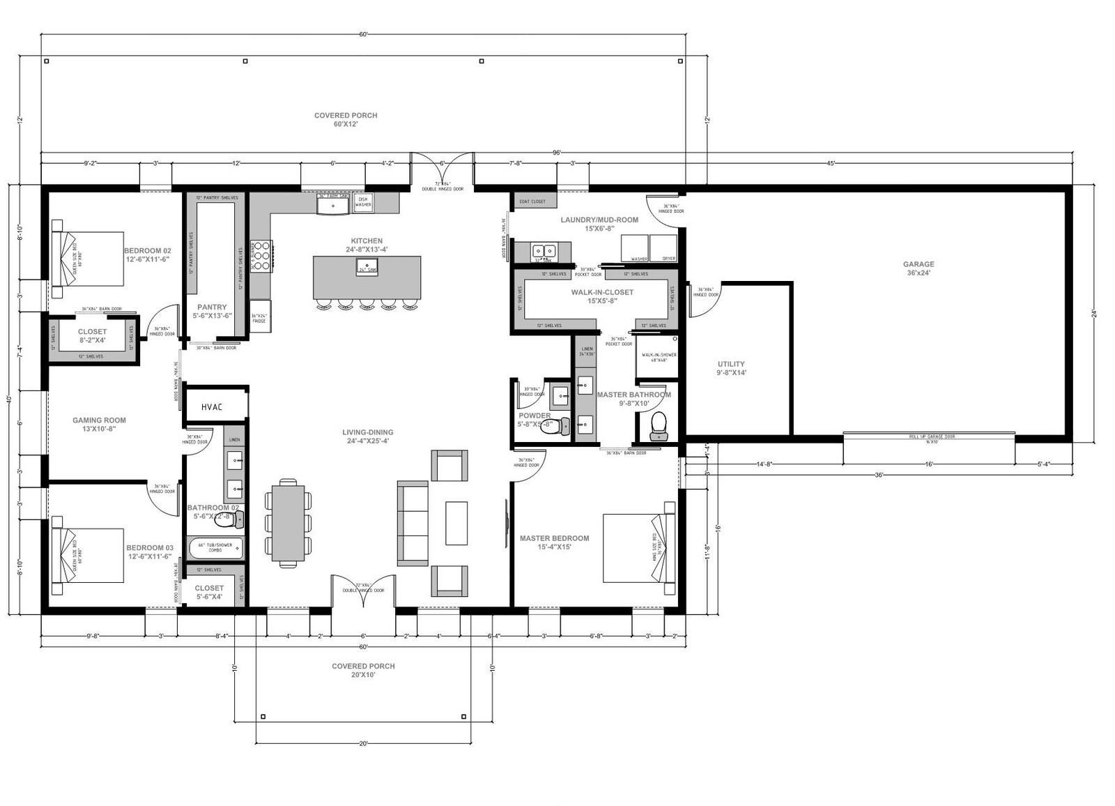
THE MOCKINGBIRD
Welcome to “The Mockingbird” barndominium, a captivating embodiment of rural sophistication by Texas Rural Construction. Embrace the warmth of country aesthetics coupled with contemporary living in this thoughtfully curated space. Expansive, sun-kissed interiors offer flexibility for personalization, creating an inviting haven that seamlessly marries rustic allure and modern convenience. Whether it’s the seamless indoor-outdoor flow or the charming architectural details, “The Mockingbird” promises a lifestyle as exceptional as the Texan landscape it resides in.
















2,400
SQFT
3
Bed
2.5
Bath




