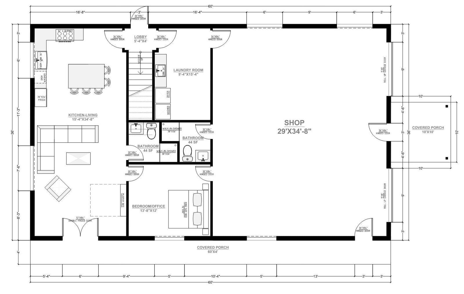
THE LONGHORN
Welcome to “The Longhorn” barndominium by Texas Rural Construction. This captivating living space harmonizes contemporary luxury with the timeless appeal of rural aesthetics. Generous interiors provide ample room for both relaxation and entertainment, while large windows frame panoramic views of the Texas landscape. Immerse yourself in a distinctive lifestyle that merges modern comforts with the spirit of the Lone Star State in this meticulously crafted barndominium.
























2,292
SQFT
3
Bed
3
Bath




