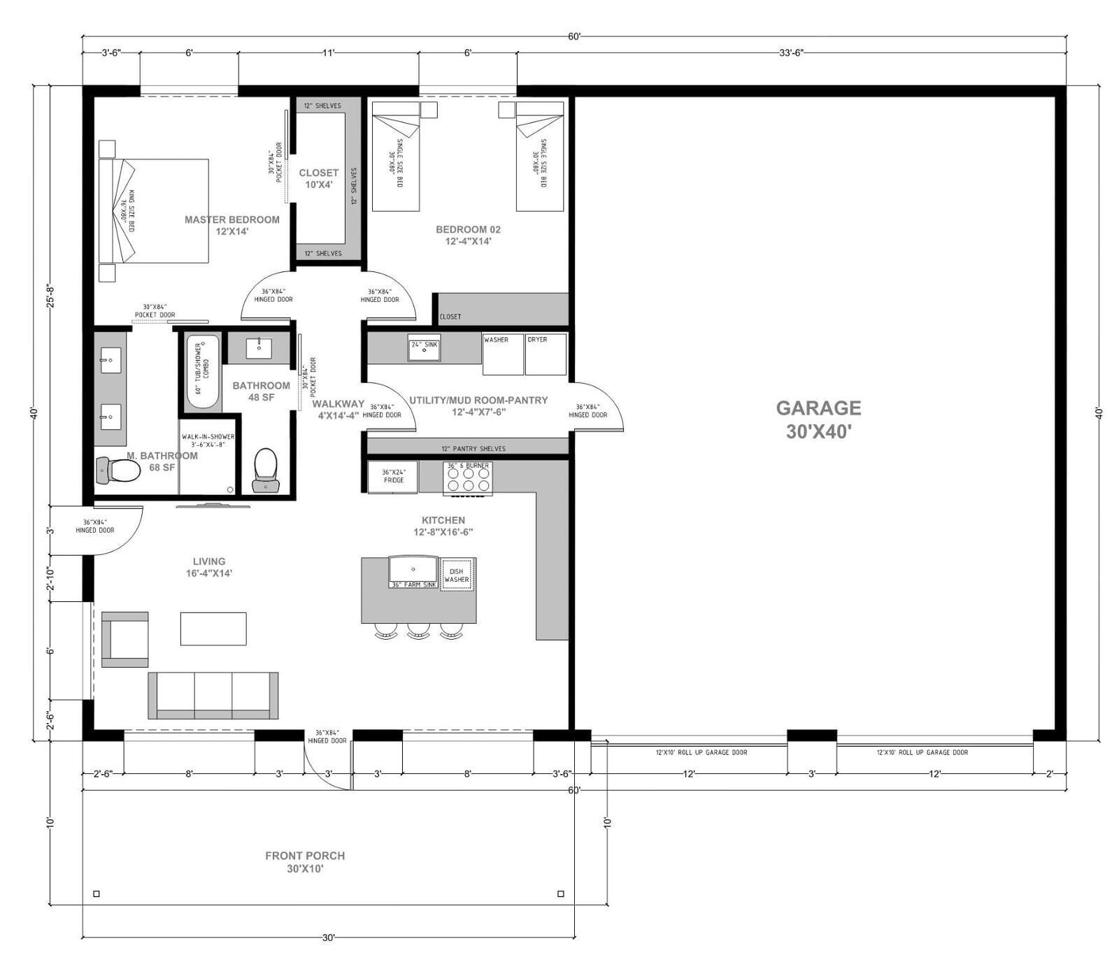
THE BLUEBONNET
Immerse yourself in the allure of “The Bluebonnet” barndominium, expertly crafted by Texas Rural Construction. A harmonious fusion of contemporary living and rustic aesthetics, this residence exemplifies the barndominium concept. From the expansive windows that frame breathtaking views to the meticulously designed interior spaces, every detail showcases the union of modern luxury and rural warmth. Embrace a lifestyle where architectural innovation meets the tranquility of Texas landscapes in “The Bluebonnet” barndominium.
















1,500
SQFT
2
Bed
2
Bath




