stillwater
The Stillwater plan is a wonderful Modern Farmhouse Barndominium. The exterior embraces the Modern Farmhouse aesthetic by incorporating board and batten siding, wood beams, a metal roof, and wood garage doors. A massive wrap around covered front porch creates an inviting warmth for guests.
Just inside the front door, you'll find yourself in a massive open layout. The great room lies under a soaring 2 story cathedral ceiling and features a fireplace that is flanked by French doors leading out to the covered porch. The kitchen includes a massive island with a snack bar and a large walk-in pantry.
The master suite is located on the main floor and is tucked in the rear of the home for ultimate privacy. The master bedroom lies under a decorative trayed ceiling. The master bathroom features a soaking tub, his and her vanities, and a large walk-in closet that has access to the laundry room.
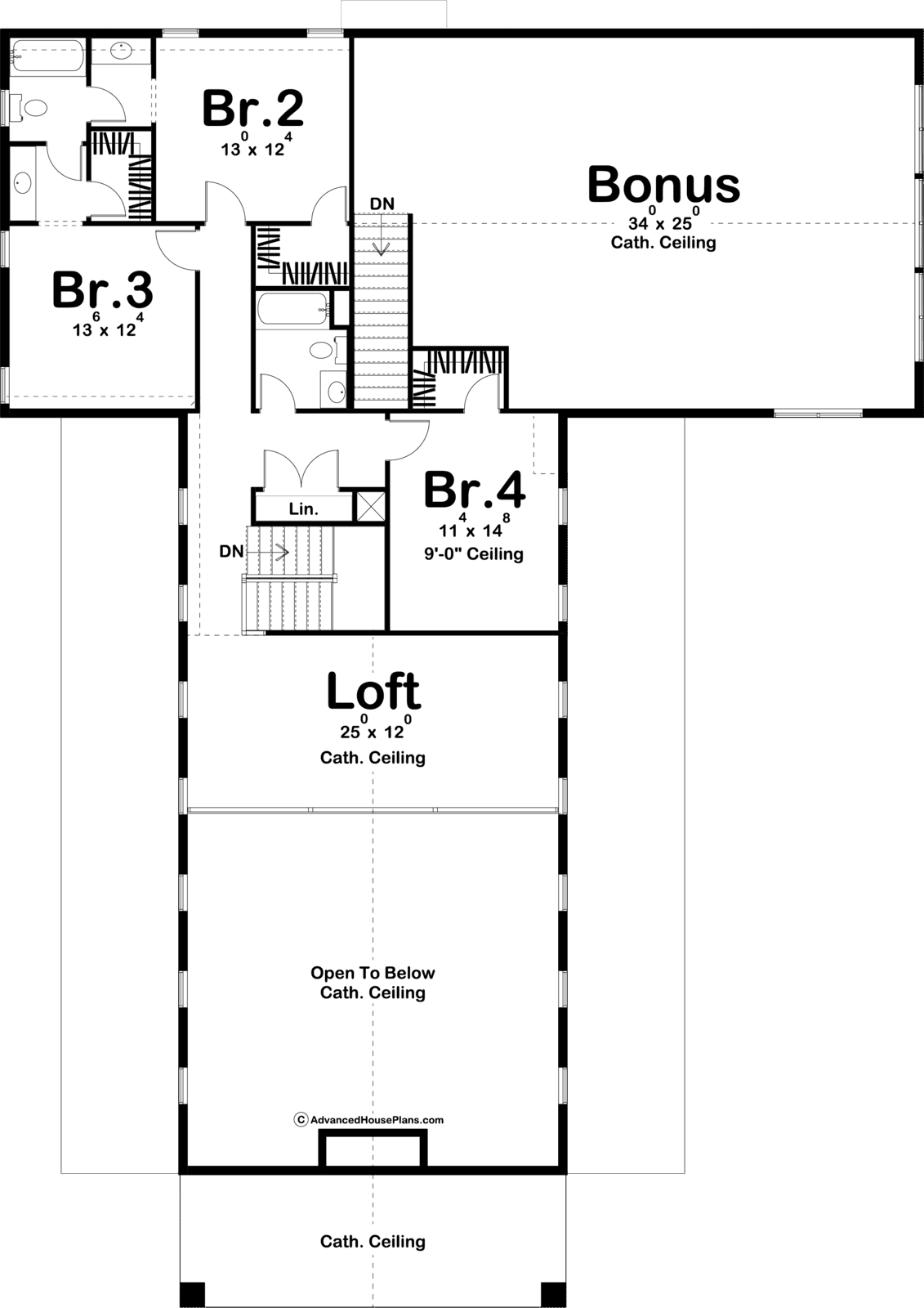
Upstairs, there are 3 additional bedrooms. Bedrooms 2 and 3 share access to a Hollywood-style bathroom. Bedroom 4 shares a centrally located hall bathroom with the upstairs loft. The loft overlooks the main living area.
You'll also find a large optional bonus area on the second floor that adds 970 sq ft to the home.
Back on the main level, the home's rear load 3 car garage includes a drive-through bay. The garage accesses the home through a convenient mud room with a catch all and coat closet.
As always any home plan can be customized to fit your needs. Whether you need to add another garage stall, change the front elevation, stretch the home larger or just make the home plan more affordable for your budget we can do that and more.






































3,205
SQFT
4
Bed
3.5
Bath




