grand valley
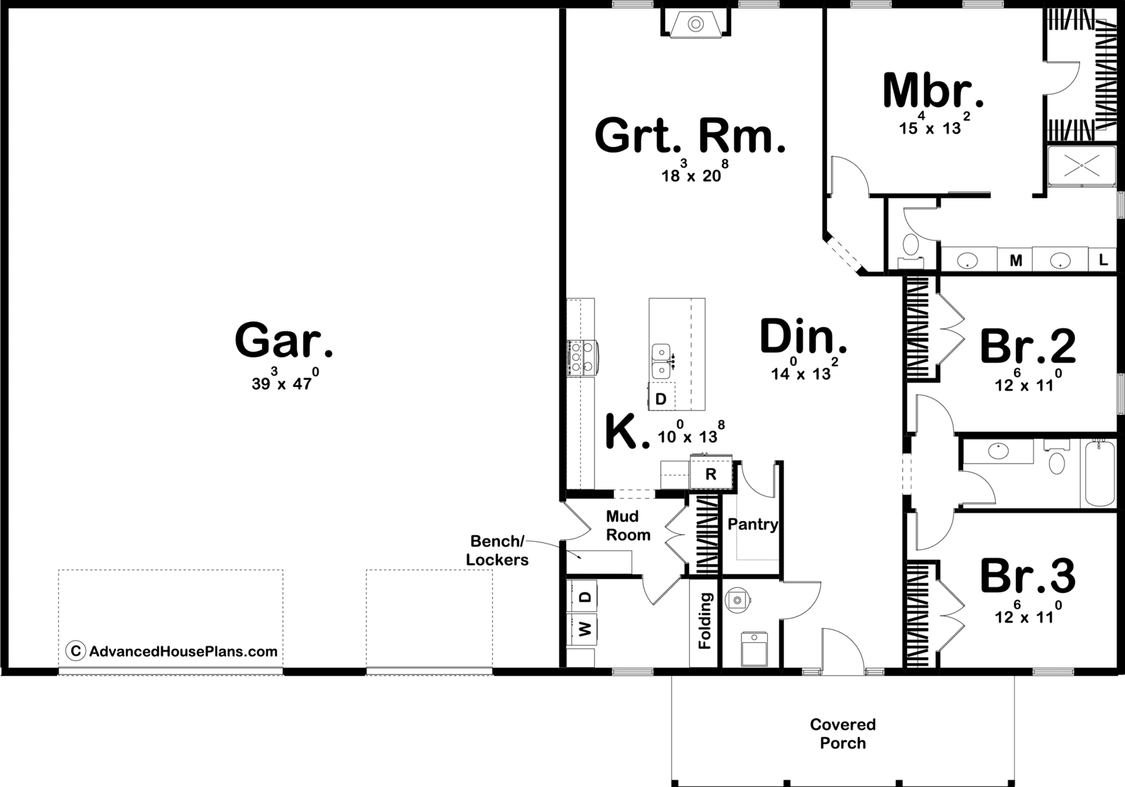
The Grand Valley home features an oversized garage at 1907 square feet. The living area of the home is 1933 square feet and features an open concept for the great room, kitchen and dining area. Walk-in closet in the master bedroom, and a fireplace in the great room.
As always any plan can be customized to fit your needs. Whether you need to add another garage stall, change the front elevation, stretch the home larger or just make the home plan more affordable for your budget we can do that.


















1,933
SQFT
3
Bed
2
Bath




