clear creek
Step onto the charming covered porch of this Barndominium-style house plan, where the allure of countryside living meets modern elegance. The sprawling wrap-around porch invites you to linger, offering a cozy space to admire the scenic surroundings. As you step inside, the grandeur of the home unfolds.
The main floor boasts a seamless flow, with the master suite providing a serene sanctuary. A spacious office offers the ideal space for work or creativity. The heart of the home lies in the open kitchen, dining, and great room, reaching two stories in height, creating an expansive, airy atmosphere. Light dances in from large windows, illuminating the space throughout the day.
The gourmet kitchen features sleek, modern amenities and an inviting layout, perfect for entertaining or casual family meals. Adjacent, the dining area offers a picturesque setting to enjoy culinary delights. The great room, with its soaring ceiling, exudes warmth and comfort, creating an ideal spot for relaxation and gatherings.
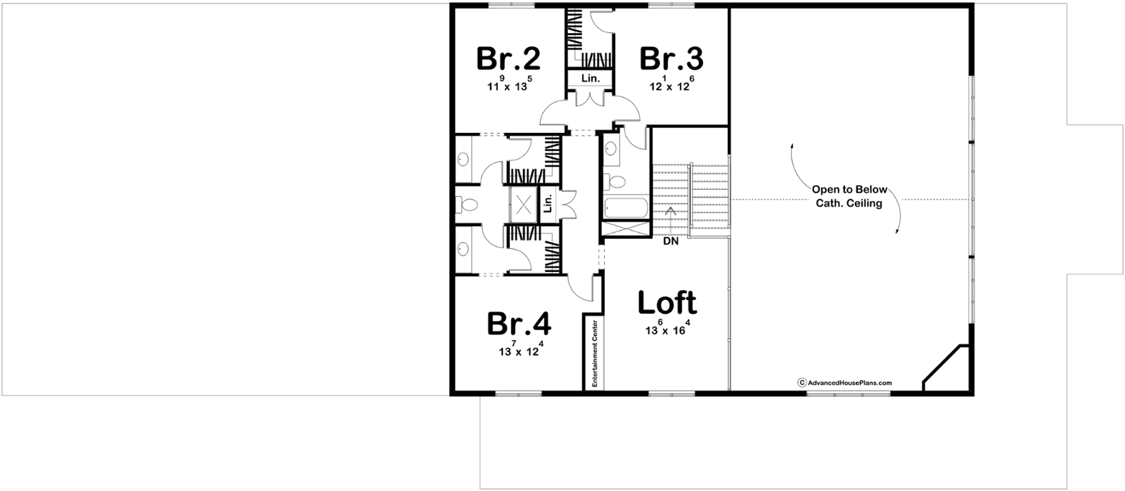
Ascend the staircase to discover the upper level, where three additional bedrooms await. Each room boasts its unique charm, and one is a luxurious ensuite, providing privacy and comfort. The other two bedrooms share a Jack and Jill bathroom, designed with convenience and style in mind. A loft space offers versatility, whether it's used as a cozy reading nook or a play area for the family.
Outside, the oversized four-car garage stands as a testament to functionality and convenience, offering ample space for vehicles and storage.




















































3,476
SQFT
4
Bed
3.5
Bath




