batenhorst
The Batenhorst Barndominium is a unique take on a mix of traditional materials and large barndominium spacing. This 2096 square foot home is 1513 square feet of garage, giving the traditional barndominium aspect. Enter the home through the two car garage, or head on in from the covered patio, either option greets you with a beautiful entryway and mudroom.
Upon entering the home, you can find a large living room with ten foot ceilings, as well as a large, open concept kitchen. The built-in fireplace or breakfast bar are two great spaces to connect with family or friends while entertaining. Just around the corner, you can find the first bedroom that has two walk-in closets, as well as a full sized bathroom.
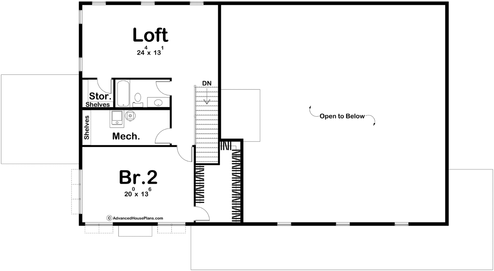
Upstairs, you can find an additional bedroom and bathroom, as well as a loft area that overlooks the living room below. Hangout here or head outside to the additional covered patio on the main floor and truly soak in those special moments and spectacular views.
As always any home plan can be customized to fit your needs. Whether you need to add another garage stall, change the front elevation, stretch the home larger or just make the home plan more affordable for your budget we can do that and more.




















































2,096
SQFT
2
Bed
2
Bath




